• info

    Architecture:

    Miguel Cayuelas

     

    Rendering:

    Luisa Barbudo Morales

     

    Location: Valencina de la Concepción, Sevilla, Spain

    Client: Ayuntamiento de Valencina

    Year: December 2018

    Type: Public

    Surface: 800 m2

    Budget: 0.8 Mio

    Status: Competition

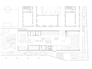
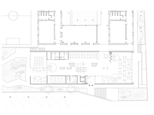
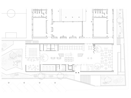
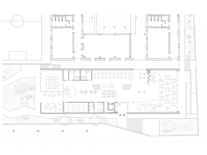
Public library Valencina

Valencina de la Concepción, Spain. Competition