• info

    Architecture:

    Miguel Cayuelas & Julian Calvo

     

    Team:

    Cristina Sanabria, consulting

    Joaquin Guerra, engineering

    Pedro Lobato, statics

     

     

    Location: Valencia, Spain

    Client: UNED Alzira-Valencia

    Year: June 2021

    Type: Public. Library

    Surface: 1500 m2

    Budget: 1.8 Mio

    Status: Competition

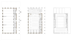
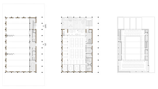
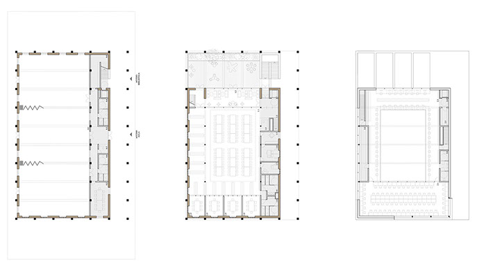
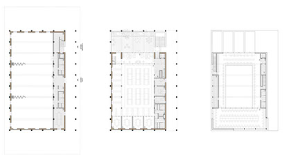
University library Alzira

Valencia, Spain. Competition